リーグ(LEAGUE)銀座
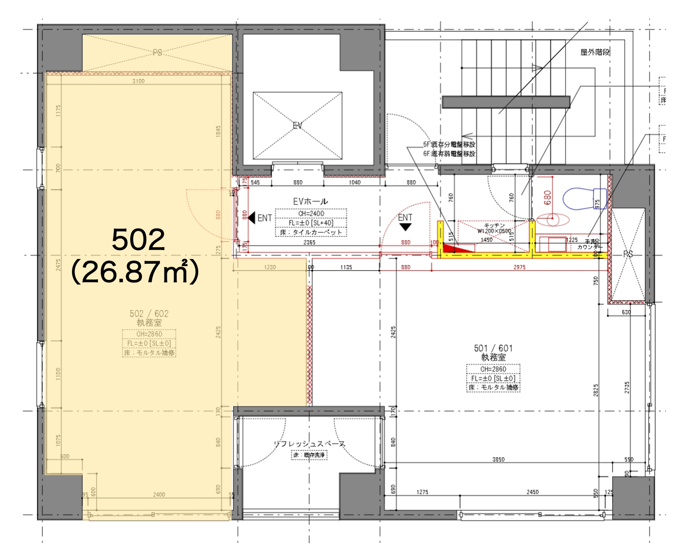
502号室(~10名用個室)
- 個室あなた専用のプライベート空間です。セキュリティなど気になる方にぴったりのプランです。オフィスにより、家具付の場合とそうでない場合があります。会議室などは共用部にある為、個室の中は執務スペースのみになります。広さで見ると、賃貸オフィスより狭くても多くの人数が入居できるのも特徴です。
最終更新日: 2025/07/25
入居費用・専有スペース
| 月額費用 | 328,250円 税込361,075円 | 賃料: 300000円 共益費: 25000円 月額保証料: 3250円 賃料・共益費にに社名登記、水光熱などが含まれています。 月額保証料は、保証会社にお支払いただく費用です。(賃料+共益費の1%) |
|---|---|---|
| 初回支払額 | 625,000円 税込687,500円 | 初回事務手数料: 300000円 初月分賃料: 0円 初月分共益費: 0円 初回保証料(賃料+共益費1か月分): 325000円 ※1_キャンペーン適用時の初回支払額です。 ※2_別途保証会社契約あり(初回保証料は、保証会社にお支払いいただく費用です。) ※3_初月利用開始日が、月半ばの場合、別途、翌月利用料が発生する場合があります。 |
この物件の特徴とおすすめポイント
\12月末までのフリーレントキャンペーン実施中/ 〜10名向けの個室オフィス。家具などご自由にレイアウトしていただけます◎ 館内の別フロアには共有ラウンジ・カフェスペース・会議室が揃っており、用途に合わせて様々なスペースがご利用可能です◎ 清掃は専有部週1回、共用部週3回での実施。 ご要望に合わせてご提案いたします。まずはお気軽に内覧にお越しくださいませ。
物件の設備・条件
※バーチャルオフィスには適用されない場合がございます。
契約
契約種別
定期賃貸借契約利用時間
プランによる契約期間
プランによる法人登記
可期間内解約
その他
共有スペース・設備
ネットワーキング
あり共有ラウンジ
一部時間制限トイレ
-給湯室
シンク、電子レンジ打ち合わせスペース(オープン)
あり複合機
有料郵便受け
プランによる駐輪場
-駐車場
-共用Wi-Fi
無料ドリンクサービス
有料ゴミ収集
共通ゴミ箱ペット
-シャワー
-TELブース
-テラス
-ロッカー
有料宅配ロッカー
あり掃除・清掃
無料家具付き
ありゲスト同伴(共有ラウンジ)
可能利用時間(共有ラウンジ)
24時間会議室
有料インターネット
-窓付き
-利用人数制限
-利用時間
-掃除
-
セキュリティ
入退出管理
カードキー受付
有人警備
有人
バーチャルオフィス用設備
郵便物転送
-電話転送
-FAX転送
-会議室
-来客対応
-
この物件のその他の区画
- 広さ
- 月額費用
- 初回支払額
- 許容人数
- 入居可能な時期

![内観[ブーススペース]_半個室。四方を壁に囲まれているため周りを気にせず集中して作業ができます。](https://jfo-app.s3.amazonaws.com/production/uploads/ea9df036-98c4-456c-87db-ed8b22dc5266.jpg)







